Zamów darmową wycenę

Opis projektu

Lynx to doskonały projekt dla każdego kto uwielbia spędzać czas blisko przyrody. Odsłonięte drewno nadaje mu naturalnego charakteru i umili chwile relaksu na dużym, zadaszonym tarasie, a otwarta przestrzeń nad strefą dzienną spotęguje wrażenie przestronności wnętrza.

Sprawdź przykładową realizację tego projektu – Dom jednorodzinny 130 m2 w Gruszeczce koło Wrocławia

Najlepiej sprawdzi się w otoczeniu lasu lub cichej okolicy. 

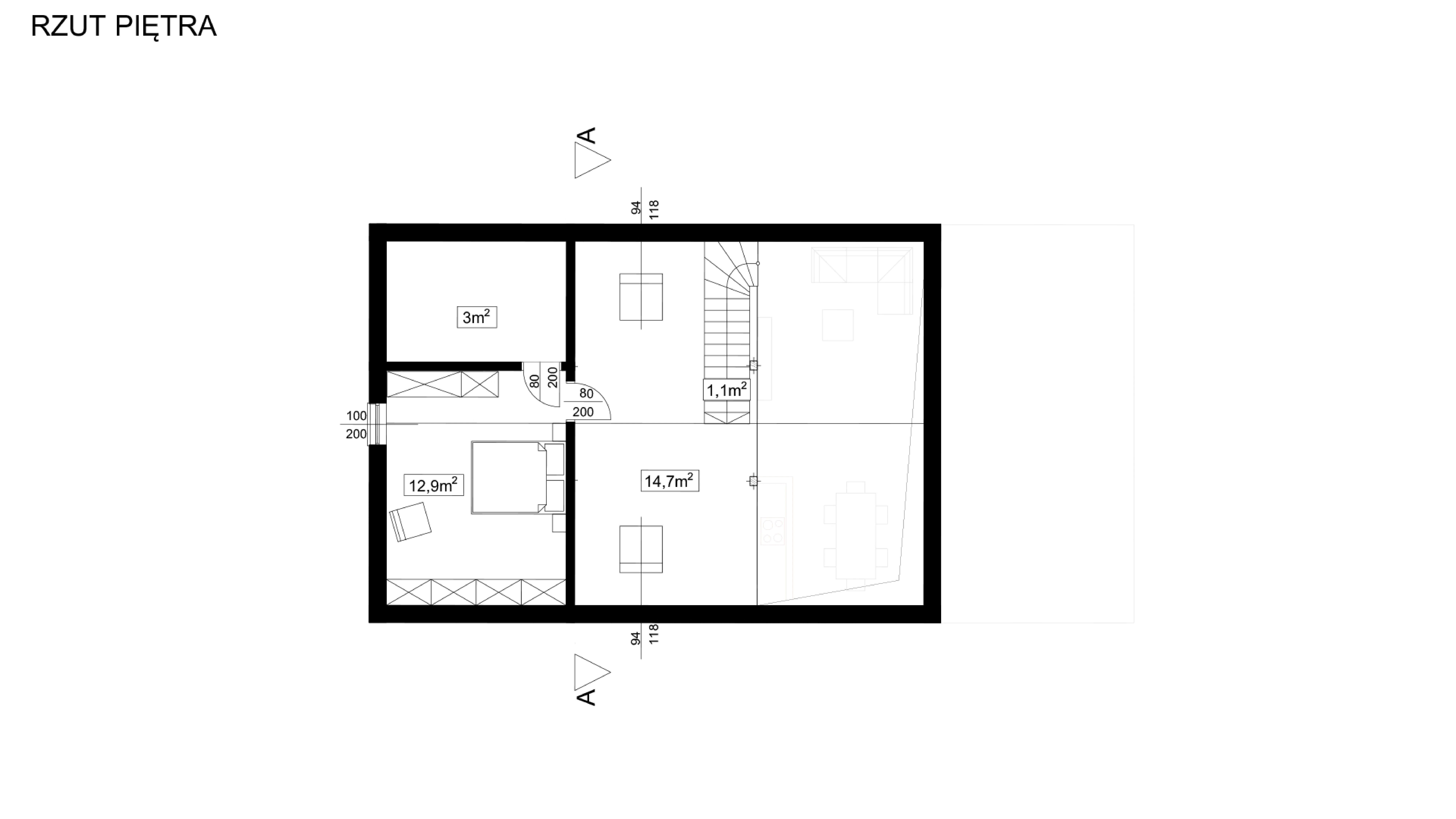
Typ budynku:
Dom jednorodzinny

Pow. netto:
147,7 m²

Liczba kodygnacji:
2

Pow. użytkowa:
112,7 m²

Stan Budynek z elewacją*od 533 679 zł brutto
Stan Deweloperski*od 731 244 zł brutto
Stan Pod Klucz*
Oferta ograniczona terytorialnie do województwa Małopolskiego i Śląskiego
od 967 914 zł brutto
Sypialnie3
Opcjonalna wiata garażowa34,2 m²
* bez prac ziemnych, fundamentu oraz pozwolenia na budowę

Zakres

Pakiet Budynek z Elewacją to realizacja domu do stanu, który obejmuje poniższy zakres:

  • zamknięta konstrukcja domu z pokryciem dachowym, orynnowaniem i elewacją przygotowaną do położenia tynku,

  • energooszczędna stolarka okienna,

  • montaż prefabrykatu,

  • transport.

Z kolei po stronie Inwestora pozostaje:

  • realizacja płyty fundamentowej, instalacji i wykończenie elewacji budynku,

  • wykonanie wylewek i ocieplenie posadzki,

  • montaż sufitów podwieszanych z ociepleniem,

  • montaż drzwi zewnętrznych.

Więcej informacji o Stanie Budynek z Elewacją.

Pakiet Deweloperski to kompleksowa realizacja domu do stanu deweloperskiego, który obejmuje poniższy zakres:

  • zamknięta konstrukcja domu z pokryciem dachowym, orynnowaniem i elewacją
  • energooszczędna stolarka okienna i drzwi zewnętrzne
  • montaż prefabrykatu,
  • transport
  • zaplecze socjalne dla pracowników,
  • wykonanie wszelkich instalacji: wod-kan, elektrycznej i teletechnicznej,
  • źródło ciepła: maty grzewcze,
  • wentylacja grawitacyjna,
  • wykonanie wylewek betonowych wraz z izolacją,
  • wykonanie sufitów podwieszanych wykończonych płytami G-K wraz z ociepleniem.

Po stronie Inwestora pozostaje jedynie wykonanie podłóg (płytki, panele itp), biały montaż, gładzie na ścianach i malowanie.

Więcej informacji o Stanie Deweloperskim.

Pakiet Pod Klucz to kompleksowe rozwiązanie realizacji inwestycji wraz z wykończeniem wnętrza. W ramach jego realizacji marka HausWerk nawiązała współpracę z SaniWell — firmą projektowo-wykończeniową, która realizuje inwestycje do stanu „Pod klucz” z zachowaniem naszych najwyższych standardów i jakości współpracy. Oferta w ramach pakietu obejmuje:

  • wykonanie kompleksowego projektu wykończenia wnętrza w standardzie „wchodzisz i mieszkasz”,
  • konsultacje i korekty projektowe,
  • kompleksowe wykonanie prac wykończeniowych.

Współpraca w zakresie tego etapu rozpoczyna się po zawarciu umowy na realizację budynku z HausWerk.

* Oferta ograniczona terytorialnie do województwa Małopolskiego, Śląskiego i Dolnośląskiego.

Więcej informacji o Pakiecie Pod Klucz.

Chcesz wycenić projekt? Daj nam znać, skontaktujemy się z Tobą niebawem.





    Polecane projekty:

    Scroll to top