Opis projektu
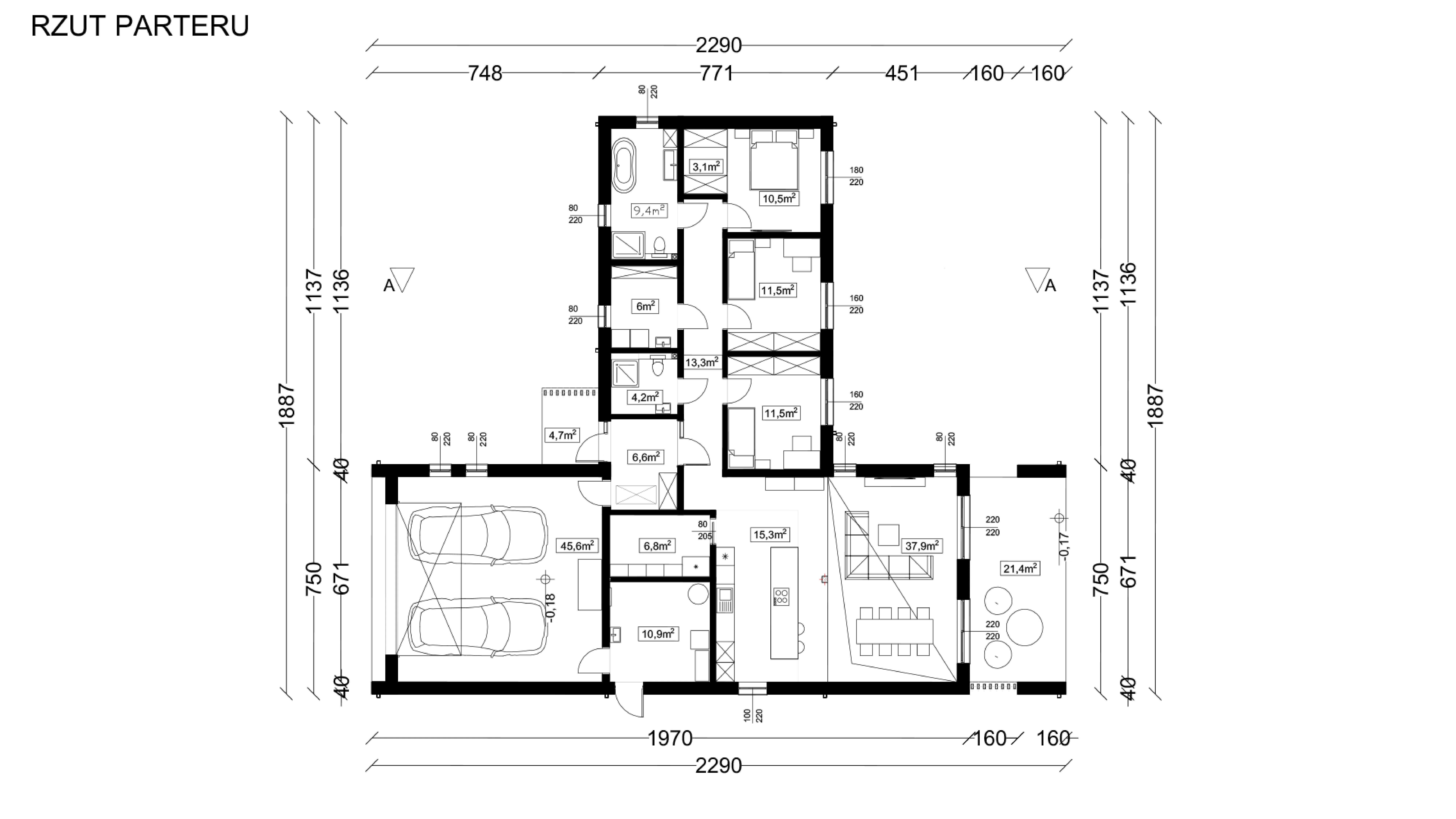
Wyjątkowy projekt Serpens został stworzony dla osób, którym marzy się duży i praktyczny dom. Bryła typu nowoczesna stodoła została wzbogacona o przestrzenny i ergonomiczny układ. Dzięki temu budynek oferuje aż 192 m² powierzchni użytkowej, dwumiejscowy garaż i miejsce pod zewnętrzną strefę relaksu.
Projekt przy współpracy HausWerk i INNI Architekci
Typ budynku:
Dom jednorodzinny
Pow. netto:
192,6 m²
Liczba kodygnacji:
1
Pow. użytkowa:
192,6 m²
| Stan Budynek z elewacją (bez prac ziemnych) | od 719 888 zł brutto |
| Stan Deweloperski (bez prac ziemnych) | od 1 001 836 zł brutto |
| Stan Pod Klucz (bez prac ziemnych)
Oferta ograniczona terytorialnie do województwa Małopolskiego i Śląskiego | od 1 406 296 zł brutto |
| Sypialnie | 3 |
| Garaż | 45,6 m² |
Zakres
Pakiet Deweloperski to kompleksowa realizacja domu do stanu deweloperskiego, który obejmuje poniższy zakres:
- zamknięta konstrukcja domu z pokryciem dachowym, orynnowaniem i elewacją
- energooszczędna stolarka okienna i drzwi zewnętrzne
- montaż prefabrykatu,
- transport
- zaplecze socjalne dla pracowników,
- wykonanie wszelkich instalacji: wod-kan, elektrycznej i teletechnicznej,
- źródło ciepła: maty grzewcze,
- wentylacja grawitacyjna,
- wykonanie wylewek betonowych wraz z izolacją,
- wykonanie sufitów podwieszanych wykończonych płytami G-K wraz z ociepleniem.
Po stronie Inwestora pozostaje jedynie wykonanie podłóg (płytki, panele itp), biały montaż, gładzie na ścianach i malowanie.
Pakiet Pod Klucz to kompleksowe rozwiązanie realizacji inwestycji wraz z wykończeniem wnętrza. W ramach jego realizacji marka HausWerk nawiązała współpracę z SaniWell — firmą projektowo-wykończeniową, która realizuje inwestycje do stanu „Pod klucz” z zachowaniem naszych najwyższych standardów i jakości współpracy. Oferta w ramach pakietu obejmuje:
- wykonanie kompleksowego projektu wykończenia wnętrza w standardzie „wchodzisz i mieszkasz”,
- konsultacje i korekty projektowe,
- kompleksowe wykonanie prac wykończeniowych.
Współpraca w zakresie tego etapu rozpoczyna się po zawarciu umowy na realizację budynku z HausWerk.
* Oferta ograniczona terytorialnie do województwa Małopolskiego, Śląskiego i Dolnośląskiego.


