Opis projektu
Jesteś deweloperem, a może chcesz rozpocząć swoją działalność w tym sektorze. Projekt budynku wielorodzinnego Octans, to bezpieczny wybór, ponieważ został zaprojektowany zgodnie z aktualnymi oczekiwaniami i potrzebami na rynku. Duże i optymalnie zaprojektowane mieszkania zapewnią swoim mieszkańcom komfort życia na co dzień, a nowoczesna technologia HausWerk pozwoli na szybką i bezproblemową realizację Twojej inwestycji.
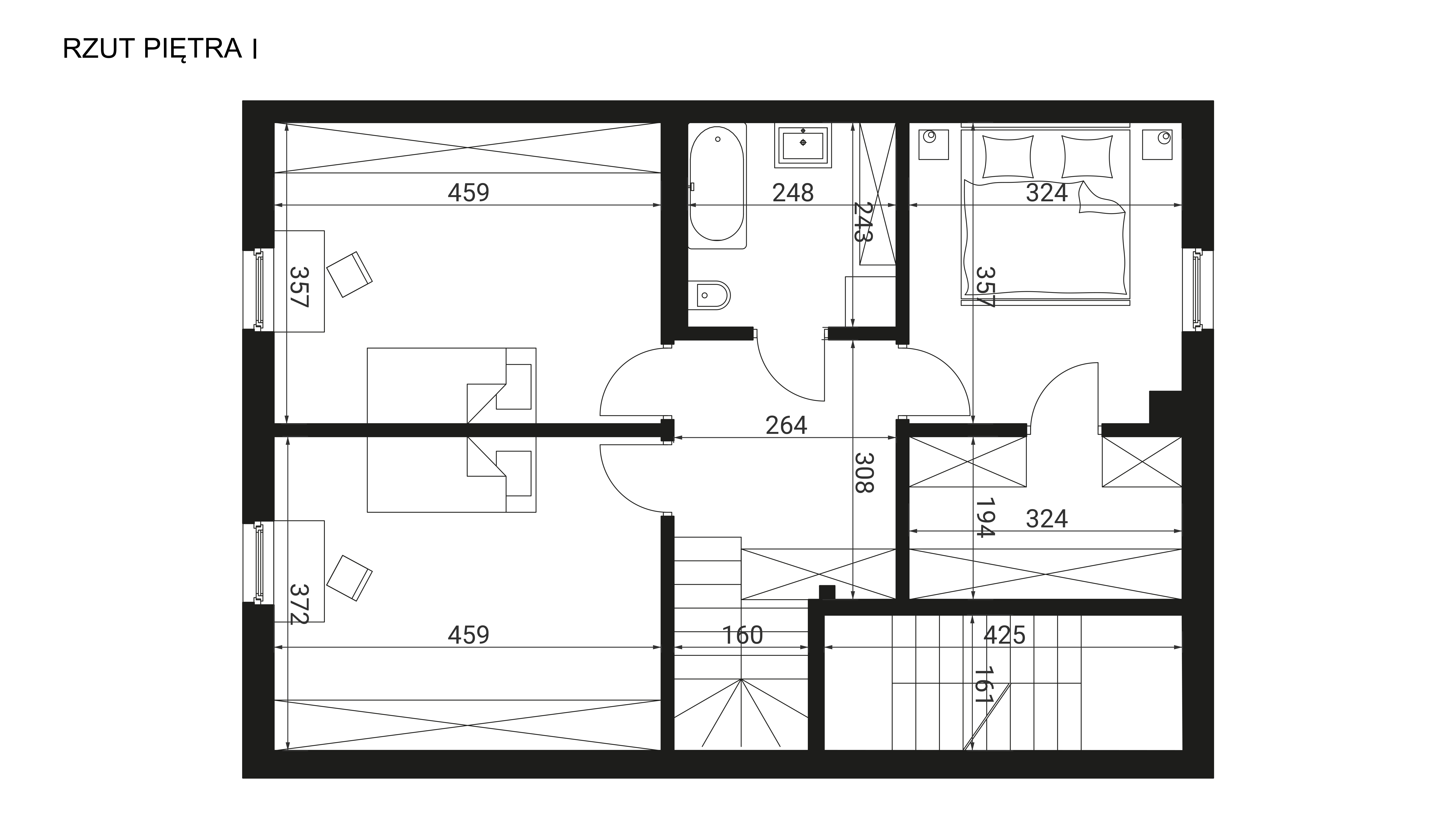
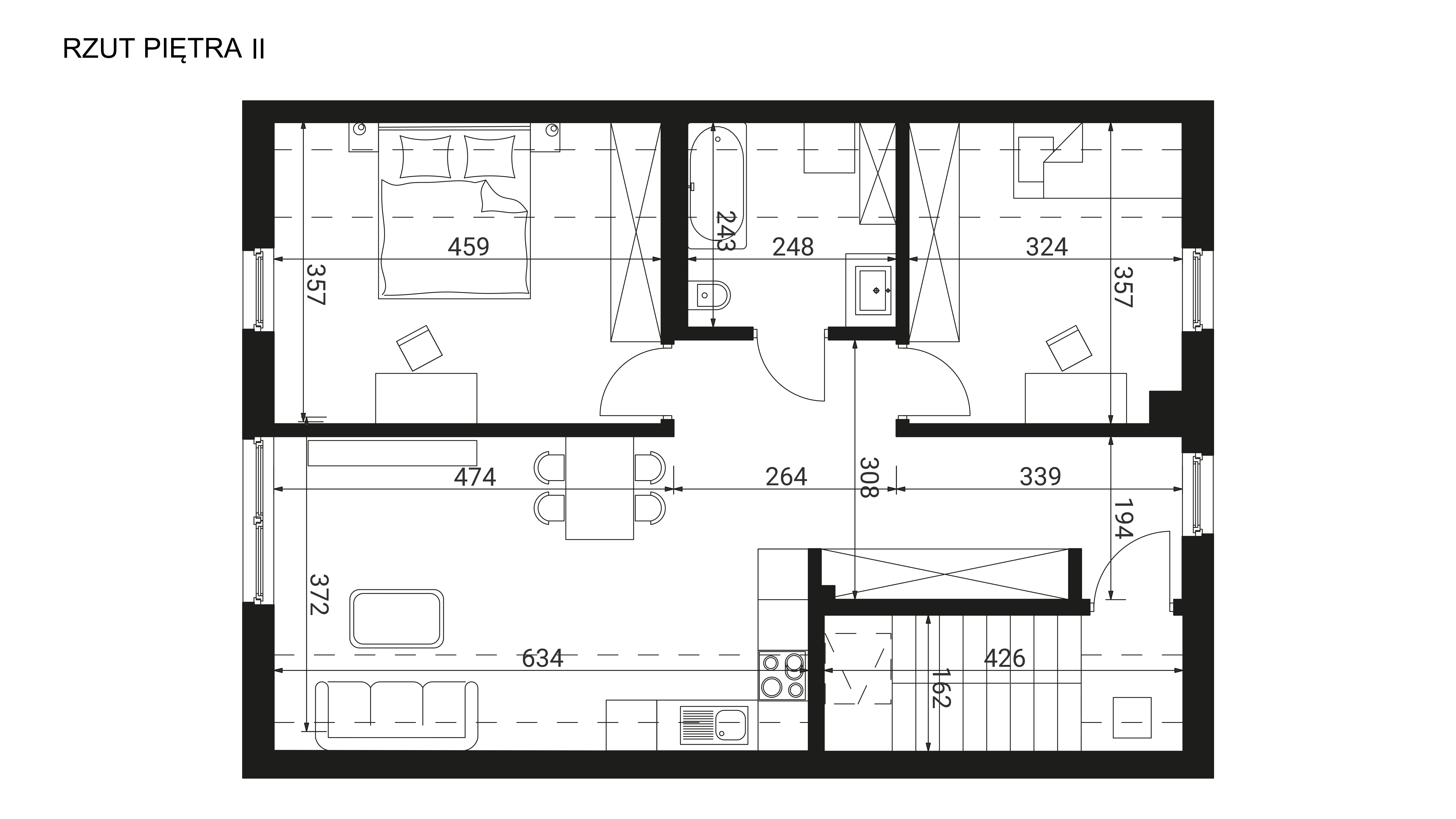
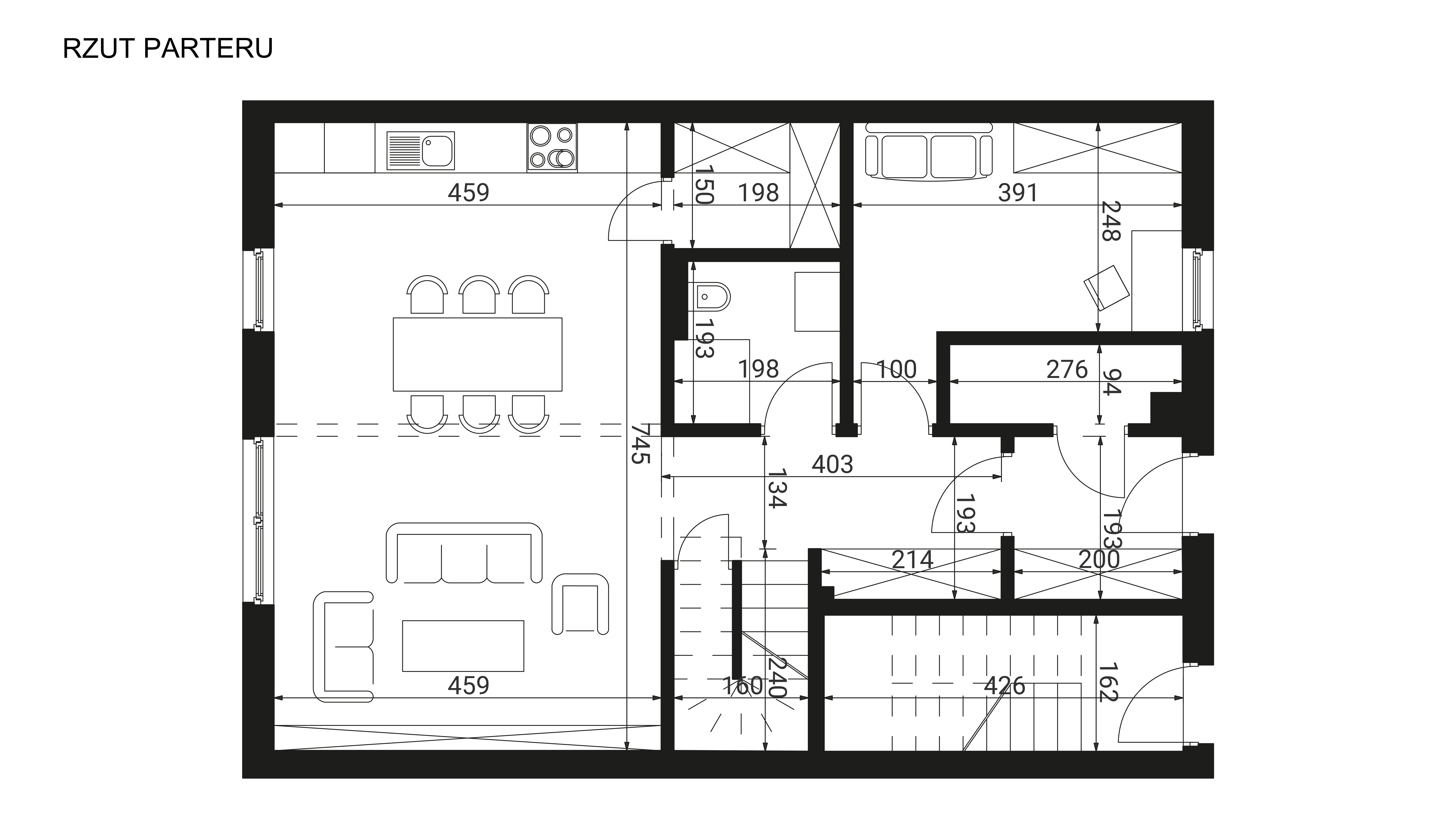
W trosce o Wasze potrzeby możemy zaadoptować projekt do określonych kryteriów. Jednym z nich może być np. zmiana układu lokali z domyślonego podziału na duży lokal o pow. użytkowej 134,01 m² i mały o pow. użytkowej 69,45 m² na trzy lokale na każdej z kondygnacji o pow. użytkowej 72,89 m² w przypadku parteru i pierwszego poziomu oraz 69,45 m² w najwyższym poziomie.
Segmenty, które składają się na jeden trzykondygnacyjny pion, mogą być realizowane w dowolnej ilości, nawet pojedynczo.
Typ budynku:
Budynek wielorodzinny
Pow. netto:
654,63 m²
Liczba kodygnacji:
3
Pow. użytkowa:
610 m²
| Stan Deweloperski z pompami ciepła i rekuperacją | od 2 635 000 zł netto |
| Cena za m² | od 4 319,00 zł netto |
| Ilość lokali | 6 |
| Typy lokali | 2 |
| Powierzchnia dolnego lokalu | 134,01 m² |
| Powierzchnia górnego lokalu | 69,45 m² |


