Project description
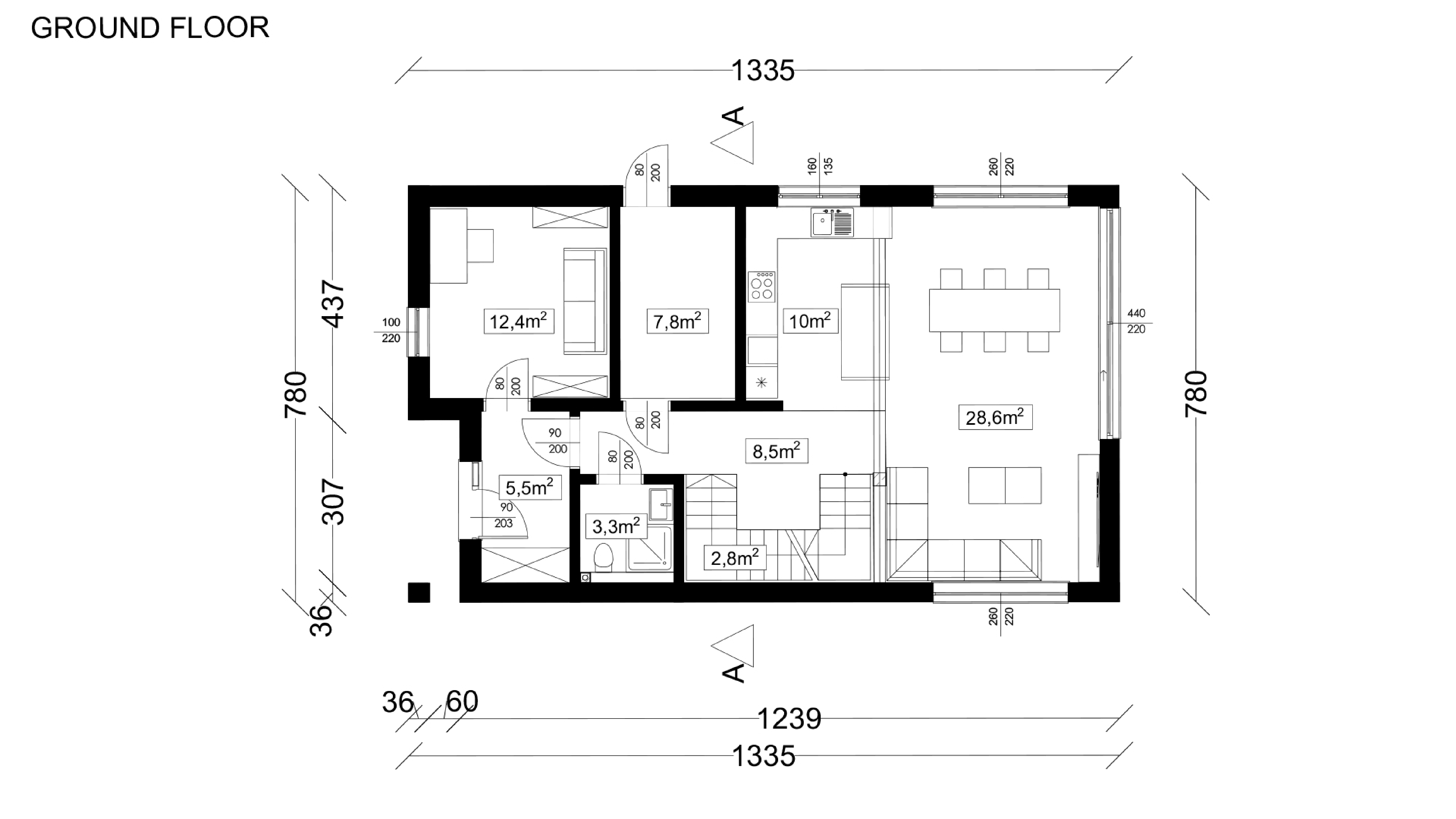
Antila is a universal design of a single-family house with a bright and spacious living room on the ground floor combined with a dining room and an open kitchen. In addition, three bedrooms upstairs, including one with a spacious closet, make this house undoubtedly appreciated by families looking for a well-arranged space and comfort.
Building type:
Single-family house
Usable area:
164,9 m²
Number of storeys:
2
Usable area:
152,9 m²
| Scope | Shell and core stage |
| Bedrooms | 3 |
| Bathrooms | 2 |
| Living room | 28,6 m² |


