Free quote

Order

Project description

This modern single-story Apus house is a great choice for any nature lover. A tasteful variant of popular single-story houses in combination with HausWerk technology guarantees durability and energy efficiency. In addition, it is a dream that can come true very quickly, in just 4 months after taking over the construction site.

 

A design created in cooperation with INNI Architekci

Building type:
Single-family house

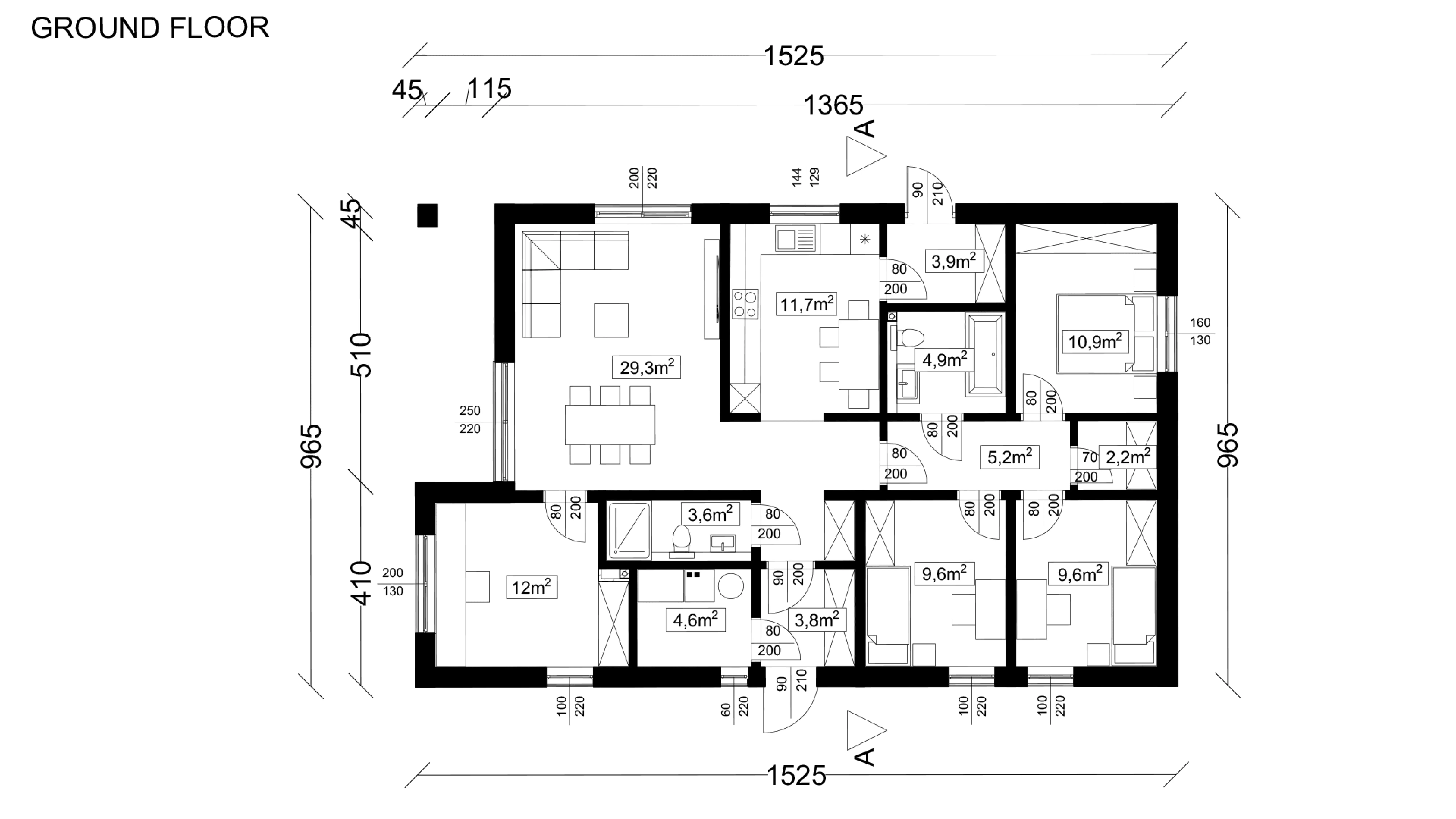
Usable area:
111,3 m²

Number of storeys:
1

Usable area:
111,3 m²

ScopeShell and core stage
Bedrooms3
Living room29,3 m²
Kitchen11,7 m²

Do you want to price a project? Let us know, we'll contact you shortly.





    Recommended projects:

    Scroll to top